levent ozden design studio
news
profiles
projects
contact
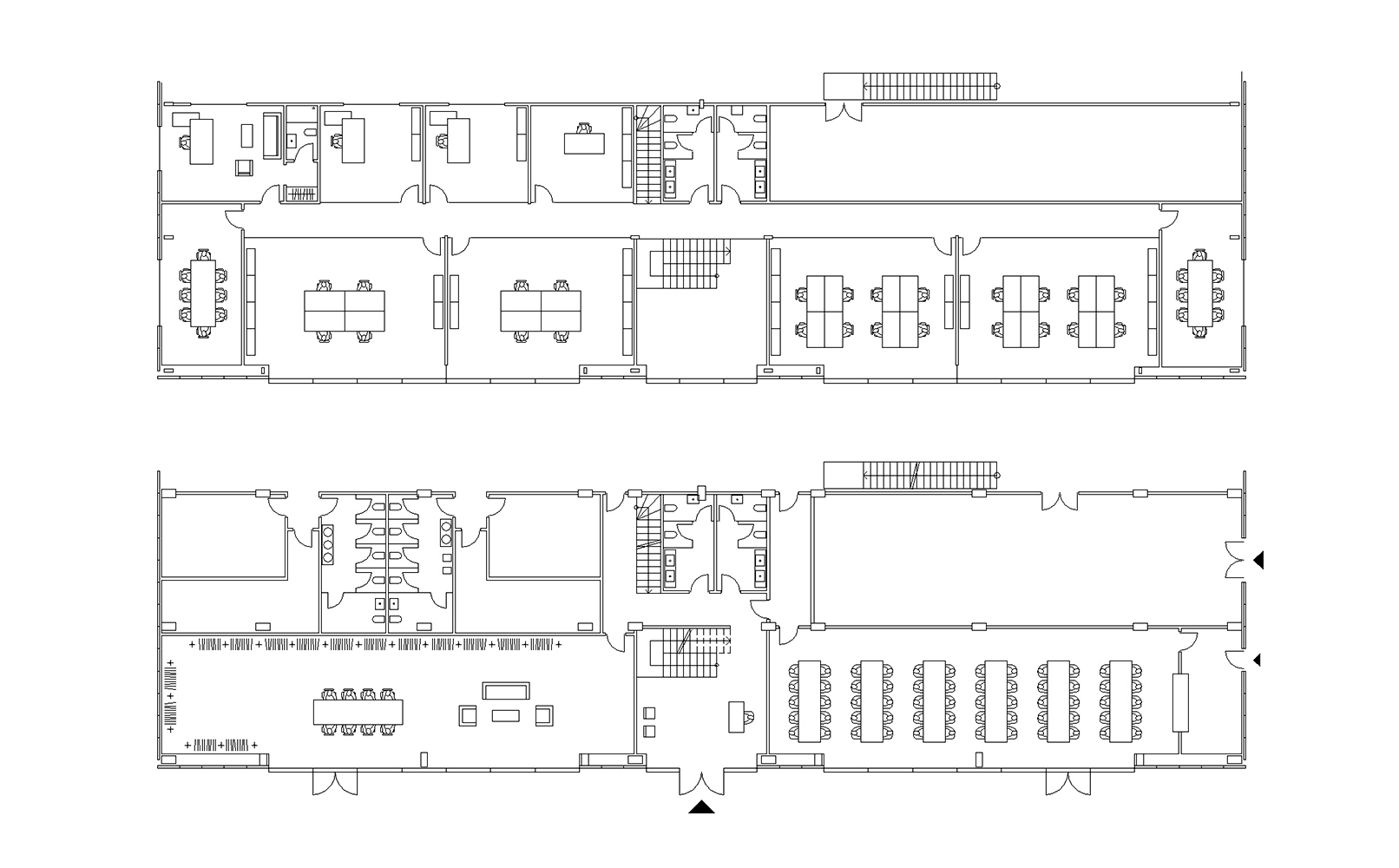
Project year : 2024
Principle use : Textile factory
Total floor area : 3500 m2.
Location : Diyarbakır, Türkiye
Back To All Project